
-
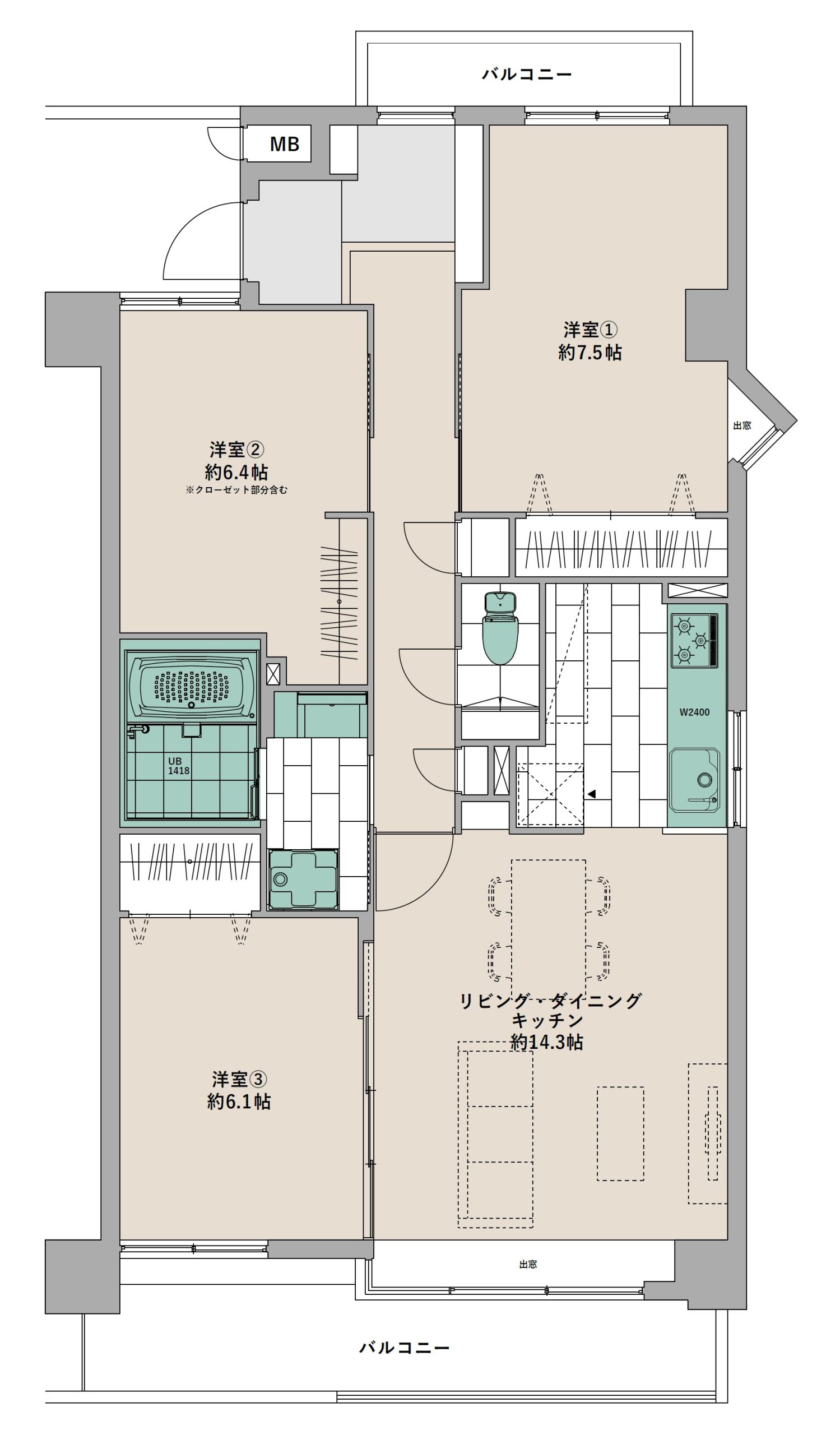
【玄関収納・土間】玄関框をL字にして土間スペースを拡大。土間はモルタルで仕上げ、棚はすべて扉のない可動棚にすることで、床から天井まで空間をフルに活用できるようになりました。
-
DATA
- 物件種別
- :
- マンション
- 所在地
- :
- 福岡市南区
- 施工面積
- :
- 78.83㎡
- 間取り
- :
- 3LDK
- 築年数
- :
- 平成3年
- 工事費
- :
- 約950万円
- 工事期間
- :
- 2ヶ月
- 工事箇所
- :
- フルリノベ

【玄関収納・土間】玄関框をL字にして土間スペースを拡大。土間はモルタルで仕上げ、棚はすべて扉のない可動棚にすることで、床から天井まで空間をフルに活用できるようになりました。
DATA
リノベーションプラン
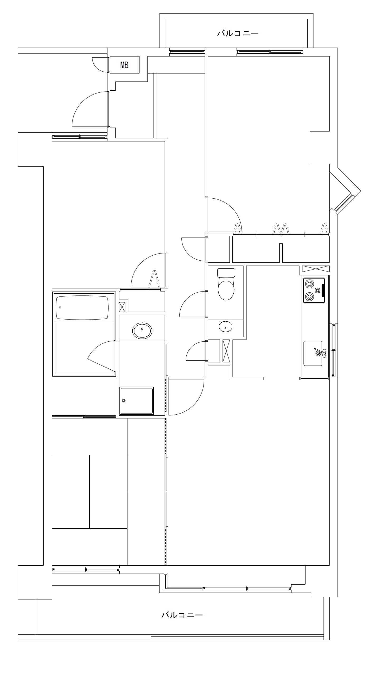
リノベーション前
リノベーション後


リノベーション写真
ビフォー・アフター
リノベーション前
リノベーション後

