マンションアーサー大橋南エクシオ

-
- 物件概要
-
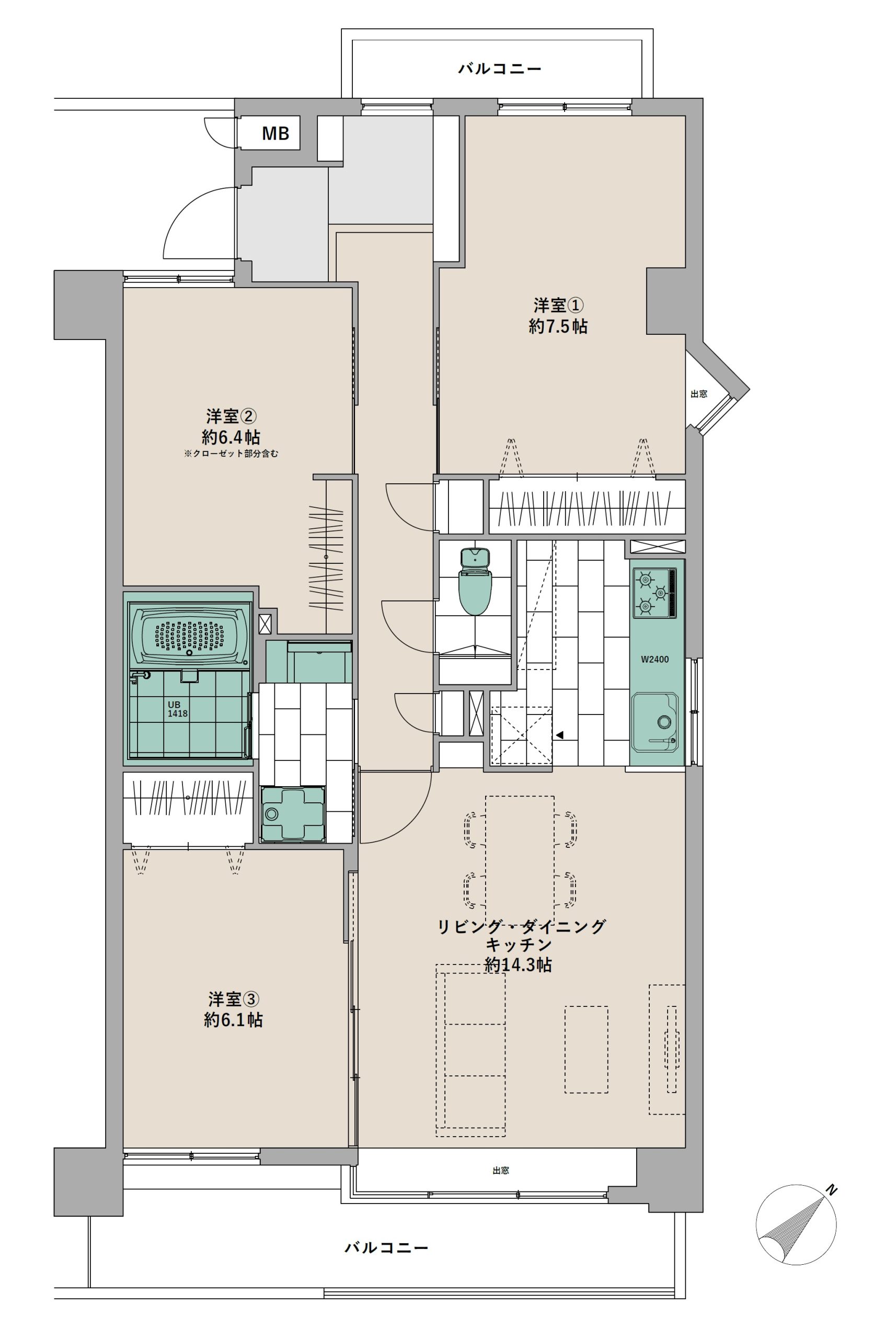
所在地 福岡市南区弥永4-22-14 間取り 3LDK 専有面積 78.83m2(壁芯) 築年月 1991年12月 価格 2490万円 交通 JR博多南線「博多南」歩15分
- 物件のポイント
-
- 最寄駅から「博多駅」まで乗車時間が約9分のリノベーションマンション♪
- 上階には部屋が無く、上からの生活音も気になりません♪
- JR博多南線「博多南駅」まで徒歩15分♪
- 角部屋&三面採光♪
- 「弥永西小学校」「日佐中学校」エリア♪
- 小学校まで徒歩5分圏内♪
- 駐車場は隣接の月極駐車場にて1台分確保済み♪
- 全居室照明器具・レースカーテン付き♪
- ユニットバスは1坪サイズ・換気暖房乾燥機・高断熱浴槽・ホーローパネル・磁器タイル仕様♪
- システムキッチンは人造大理石天板・食器洗乾燥機・浄水器内蔵水栓♪
- 専有部分配管交換済み♪
- オートロック完備のマンション♪
- 全居室6帖以上の広々間取り♪
- 万が一の時に安心な既存住宅売買瑕疵保険付き(弊社費用負担)♪
- 最寄駅から「博多駅」まで乗車時間が約9分のリノベーションマンション♪
物件詳細
| 物件名 | アーサー大橋南エクシオ | ||
|---|---|---|---|
| 所在地 | 福岡市南区弥永4-22-14 | ||
| 交通 | JR博多南線「博多南」歩15分 | 間取り | 3LDK |
| 価格 | 2490万円 | 専有面積 | 78.83m2(壁芯) |
| その他面積 | バルコニー面積:12.87m2 | 管理費(月額) | 1万5700円/月 |
| 修繕積立金(月額) | 1万6330円/月 | その他費用(月額) | - |
| 完成時期(築年月) | 1991年12月 | 総戸数 | 18戸 |
| 管理形態 | 委託(巡回) | 現況 | 空家 |
| 引渡し時期 | 即引渡可 | 向き | 南東 |
| 所在階 | 2階/8階建 | 構造 | RC造 |
| オートロック | 有り | エレベーター | 有り |
| 用途地域 | 1種住居、2種住居 | 土地権利 | 所有権敷地権 |
| 駐車場 | 近隣確保(6050円/月) | ペット飼育 | 飼育不可 |
| 取引態様 | 売主 | ||
| リノベーション内容 | 令和8年2月完了 [浴室] ユニットバス(換気暖房乾燥機・高断熱浴槽・ホーローパネル・磁器タイル) [キッチン] システムキッチン(人造大理石天板・食器洗乾燥機・浄水器内蔵シャワー水栓) [洗面室] 洗面台・防水パン・洗濯機水栓・タオル掛 [トイレ] ウォシュレット付トイレ・タオル掛・ペーパーホルダー [共通・その他] 間取変更・建具・照明器具・カーテン・ガス給湯器・シューズクローク・エアコン(洋室②) 給水給湯排水配管(専有部)・ハウスクリーニング 壁・天井:クロス(LDK一部壁:タイル) 床:フローリング(遮音突板、LD・洋室・廊下) フロアタイル(キッチン・洗面室・トイレ) モルタル(玄関土間) |
||
| 備考 | - | ||





















